Lichthaus 152 in Friedrichroda



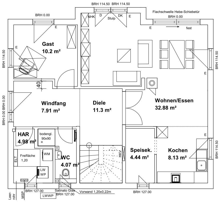
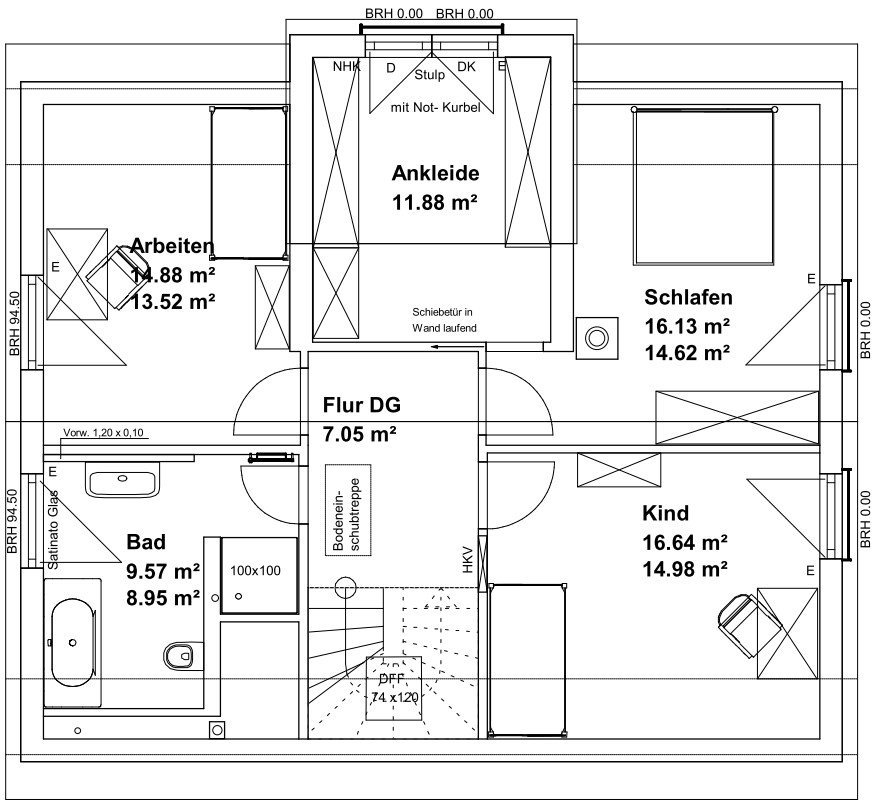
Sie lieben Sonne und Licht? Das Lichthaus 152 garantiert Ihnen ein besonderes Ambiente – sonnig, durch bodentiefe Fenster, offen dank großzügiger Räume. Herzstück des Hauses ist das weitläufige Wohnzimmer mit Blick in den Garten. Die Terrasse lädt zum Sonnenbad ein oder ist idealer Platz für schöne Grillabende. Küche und Arbeitszimmer erfüllen die höchsten Ansprüche an Raum und Planung. Auch das Obergeschoss besticht durch Großzügigkeit. Neben einem gemütlichen Schlafzimmer haben Sie dort zwei Kinder- und ein Gästezimmer, also genügend Platz, um sich zu entfalten. Das Lichthaus 152 kombiniert Größe mit Gemütlichkeit und schafft damit eine strahlende sowie lauschige Wohnatmosphäre in jedem Raum.




