Unsere Referenzen
Hier finden Sie einige der Häuser, die wir in den letzten Jahren für unsere Kunden gebaut haben. Bei den meisten Bildern handelt es sich um Originalbilder des Bauvorhabens. Ebenso haben wir bei vielen Häusern den Grundriss hinterlegt, den unsere Bauherren sich gewünscht haben. Diese sind im Übersichtstext mit "Mit angepassten Grundriss in den Bildern." gekennzeichnet.

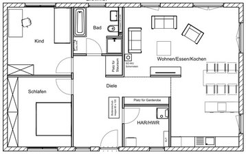
Bungalow 100
Dieser schöne Bungalow 100 befindert sich in der Gegend von Floh-Seligenthal. Mit angepassten Grundriss in den Bildern.
- 99991 Altengottern

Bungalow 100
Dieser schöne Bungalow 100 befindert sich in der Gegend von Floh-Seligenthal. Mit angepassten Grundriss in den Bildern.
- 99991 Altengottern

Bungalow 78
Der Bungalow für die kleine Familie – Übersichtlich und variabel
- 99947 Bad Langensalza OT Nägelstedt

Bungalow 100
Dieser schöne Bungalow 100 befindert sich in der Gegend von Floh-Seligenthal. Mit angepassten Grundriss in den Bildern.
- 99831 Mihla

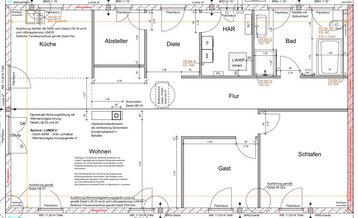
Bungalow 131
Der massive Bungalow für Familien, die sich Flexibilität wünschen. Mit angepassten Grundriss in den Bildern.
- 99718 Greußen OT Großenehrich











