Flair 125 in 98527 Suhl



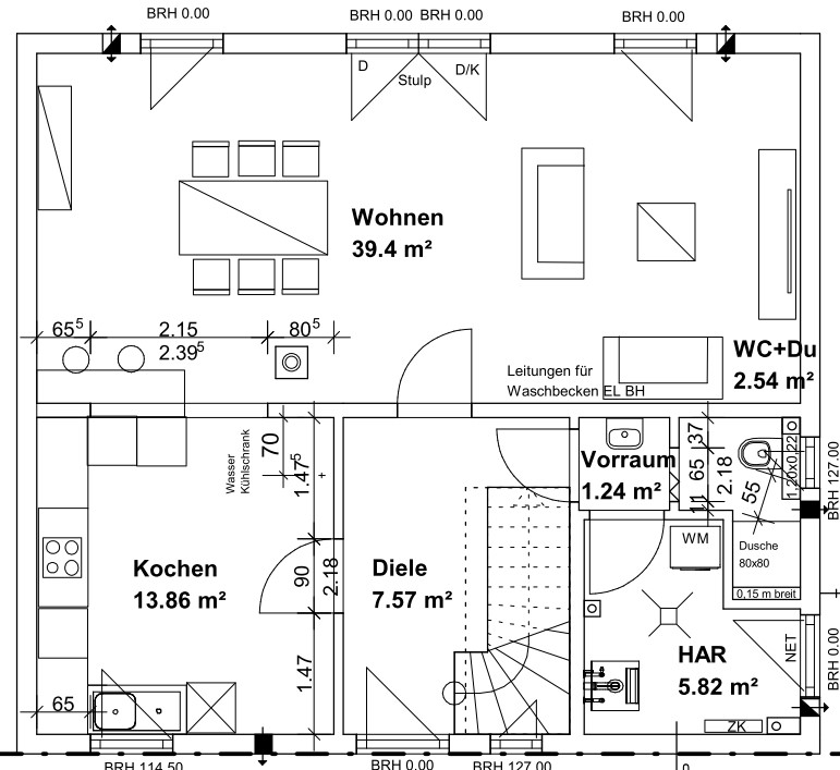
Das Flair 125 ist eines unserer beliebtesten Häuser. Und das zu Recht, denn es ist ein Haus mit besonderer Ausstrahlung. Eine Ausstrahlung, die sich schon beim ersten Blick zeigt: das weitläufige Wohnzimmer mit dem großen Essbereich ist ein absoluter Anziehungspunkt für die ganze Familie und für Gäste. Drei große Fenster machen den Wohnbereich besonders hell und freundlich, der Blick in den Garten rundet die angenehme Atmosphäre ab.
Auch die Küche bietet Ihnen viel Platz für das gemeinsame Kochen mit den Kindern oder Freunden. Die drei geräumigen Zimmer im Obergeschoss bieten genug Platz zur persönlichen Entfaltung, eine weitere Unterteilung dieser Etage ist möglich. Dieses Haus besitzt nicht nur Charakter und einen besonderen Charme, es ist obendrein äußerst flexibel. Für große Familien können 5 oder 6 Zimmer eingeplant werden. Auch das Hausdesign ist wandlungsfähig: ob modern oder im süddeutschen Stil – im Flair werden Ihre Familie und Sie sich wohlfühlen.




