Unsere Referenzen

Hier finden Sie einige der Häuser, die wir in den letzten Jahren für unsere Kunden gebaut haben. Bei den meisten Bildern handelt es sich um Originalbilder des Bauvorhabens. Ebenso haben wir bei vielen Häusern den Grundriss hinterlegt, den unsere Bauherren sich gewünscht haben. Diese sind im Übersichtstext mit "Mit angepassten Grundriss in den Bildern." gekennzeichnet.

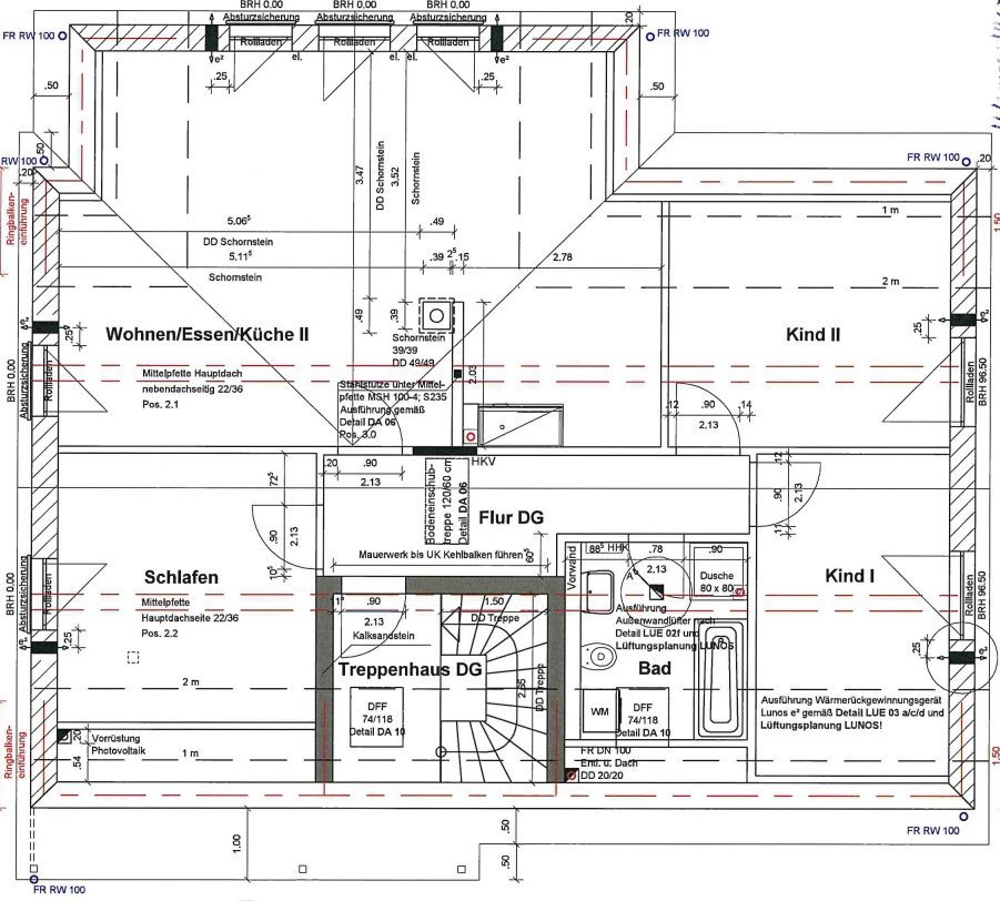
Domizil 192 in 97633 Sulzfeld

Das Domizil 192 ist doppelt gut – denn es bietet Platz und Behaglichkeit für zwei Familien auf zwei Etagen. Im Erdgeschoss ist genügend Platz für ein großes Wohn- und Schlafzimmer sowie für ein Kinder- und Gästezimmer. Vom Wohnzimmer aus haben Sie durch die bodentiefen Fenster einen wunderschönen Blick in Ihren Garten. Diesen können Sie auch von Ihrem Schlaf- und Gästezimmer direkt begehen. Besonders reizvoll auf Ihrem Weg ins Freie ist dabei der überdachte Winkel zwischen Wohn- und Gästezimmer. Hell und geräumig sind auch die restlichen Zimmer inklusive Küche sowie ein gemütliches Schlafzimmer, ein Bad und zwei weitere Zimmer – ideal geeignet für ein Kinder- und Gästezimmer. Das Domizil eignet sich auch optimal als Mehrgenerationenhaus. 

Zur Übersicht