Bungalow 131 in 99994 Nottertal


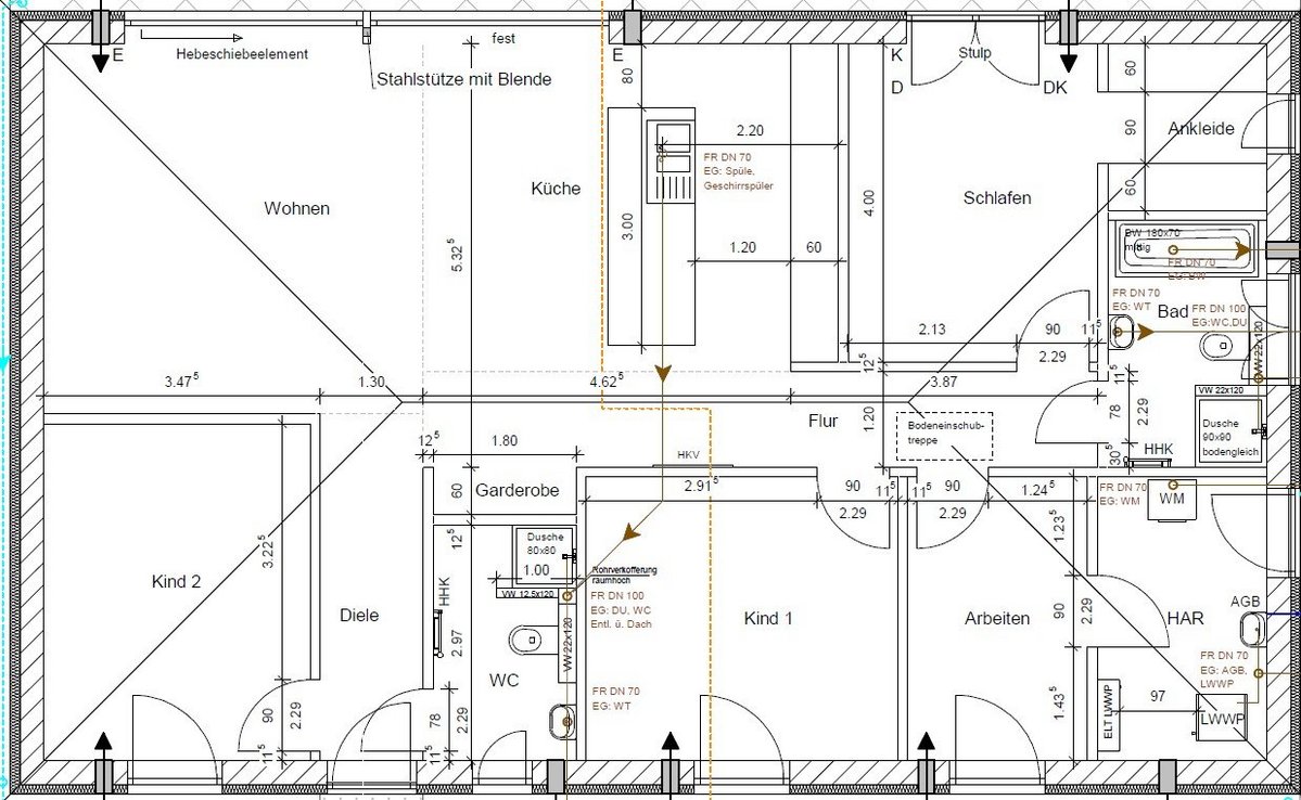
Komfort und Funktionalität vereint: Der Bungalow 131. Dieser Bungalow bietet alles, was Sie für ein komfortables Leben benötigen. Die durchdachte Raumaufteilung mit einem großen Wohn-Kochbereich und mehreren Schlafzimmern sorgt für eine optimale Nutzung der Fläche. Der großzügige Stauraum macht das Leben noch einfacher. Die bodentiefen Fenster lassen nicht nur viel Licht herein, sondern bieten auch einen herrlichen Ausblick in Ihren Garten. Ihr Badezimmer gestalten Sie ganz nach Ihren Wünschen – eine echte Wohlfühloase.




