Bungalow 131 in 98617 Rhönblick



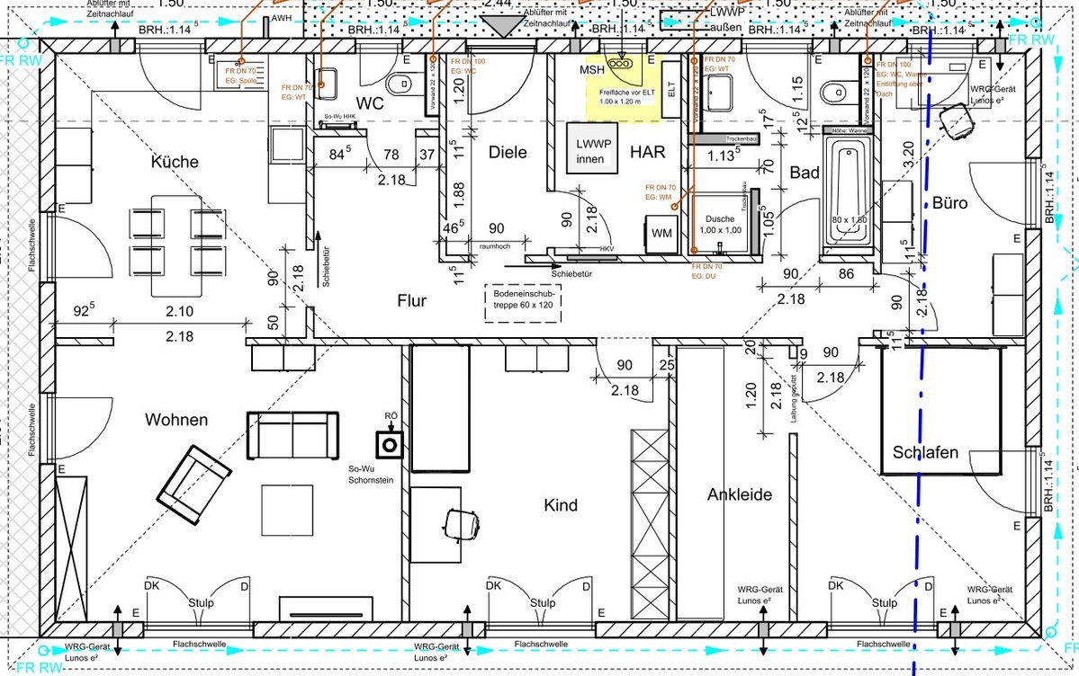
Familienleben auf einer Ebene - Der Bungalow 131 hat es in sich – 5 Zimmer, zwei Kinderzimmer und zwei Bäder – viel Wohnfläche und clever nutzbarer Stauraum für die ganze Familie. Die kluge Raumaufteilung bietet eine große Wohnküche in der Sie mit ihren Lieben Freizeit und Essen genießen können. Das traumhafte Wohnzimmer mit seinen großen Fenstern ist der perfekte Ort zum Entspannen, bietet freien Blick in Ihren Garten und mit wenigen Schritten sind Sie auf Ihrer Terrasse im Grünen. Dank bodentiefer Fenster sind die Wohnräume des Bungalow 131 lichtdurchflutet und geben ein besonderes Wohngefühl, welches sich auch im großzügigen Wohnzimmer widerspiegelt. Das geräumige Schlafzimmer sowie drei weitere Zimmer runden das Raumangebot im Bungalow 131 ab und machen Ihr Traumhaus zum Begleiter in allen Lebensphasen. Ihr Badezimmer gestalten Sie als Ihre ganz persönliche Wohlfühloase. Das Gäste-WC bietet Platz für eine weitere Dusche.



