Bungalow 100 in 99991 Altengottern



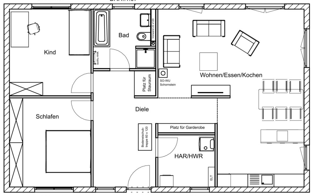
Für junge Familien ist der Bungalow 100 die perfekte Wahl! Mit seinem großzügigen Wohnbereich und der flexiblen Raumaufteilung bietet er ausreichend Platz zum Spielen und Toben. Die bodentiefen Fenster lassen viel Licht hinein und sorgen für eine freundliche Atmosphäre. Der Garten ist der ideale Ort, um die Natur zu genießen und gemeinsam Zeit im Freien zu verbringen. Dank der durchdachten Grundrissgestaltung lässt sich der Bungalow 100 auch später problemlos an veränderte Bedürfnisse anpassen.




