Bungalow 100 in 99831 Mihla

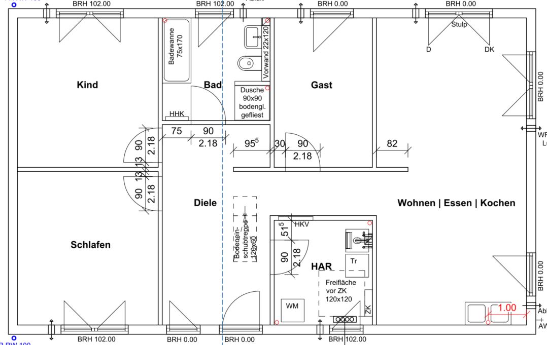
Entdecken Sie Ihr neues Zuhause im Bungalow 100! Mit seinem modernen Design und der durchdachten Raumaufteilung bietet er Ihnen ein Höchstmaß an Komfort und Wohnqualität. Der großzügige Wohnbereich mit offener Küche lädt zum Verweilen ein und ist der ideale Ort für gemeinsame Stunden mit der Familie. Die bodentiefen Fenster fluten die Räume mit natürlichem Licht und schaffen eine helle und freundliche Atmosphäre. Genießen Sie den direkten Zugang zum Garten und lassen Sie die Seele baumeln. Der Bungalow 100 ist nicht nur schön anzusehen, sondern auch ausgesprochen praktisch und energieeffizient.




