Bungalow 110 in 99947 Schönstedt


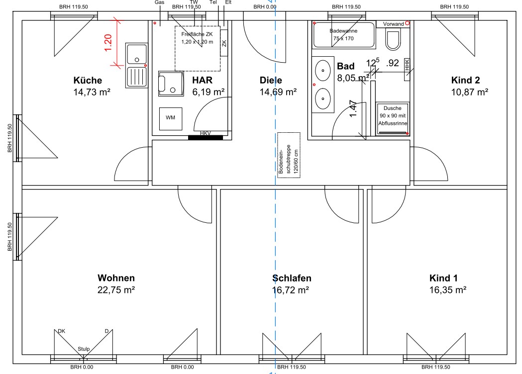
Hier spielt sich alles auf einer Wohnebene ab - Für eine Familie mit zwei Kindern ist der Bungalow 110 ein ideales Zuhause. Er bietet ein gemütliches Wohnzimmer mit Essbereich, ein geräumiges Schlafzimmer und zwei weitere Zimmer. Alle Räume sind dank großer Fenster hell und freundlich. Mit quasi einem Schritt sind Sie mit Ihren Liebsten im Garten und können die Sommerzeit bei einem Grillabend genießen. Das schöne Walmdach gibt dem Bungalow seinen Charakter. Der Bungalow 110 ist ein perfekter Ort für Menschen, die die gegenseitige Nähe lieben und zugleich ihren individuellen Platz schätzen. Hier können Sie stufenlos glücklich sein.




